Cart

Tuesday, 01 September 2020

Seaview Farm

 
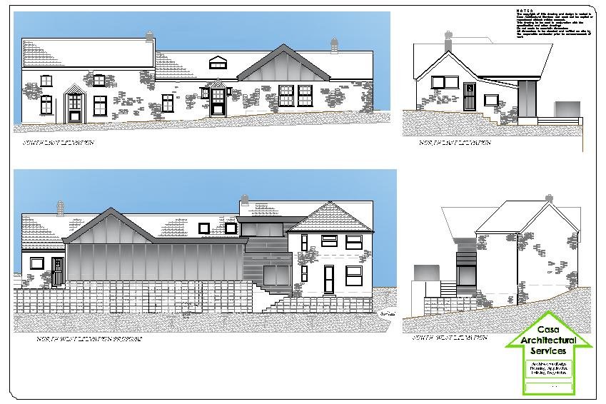
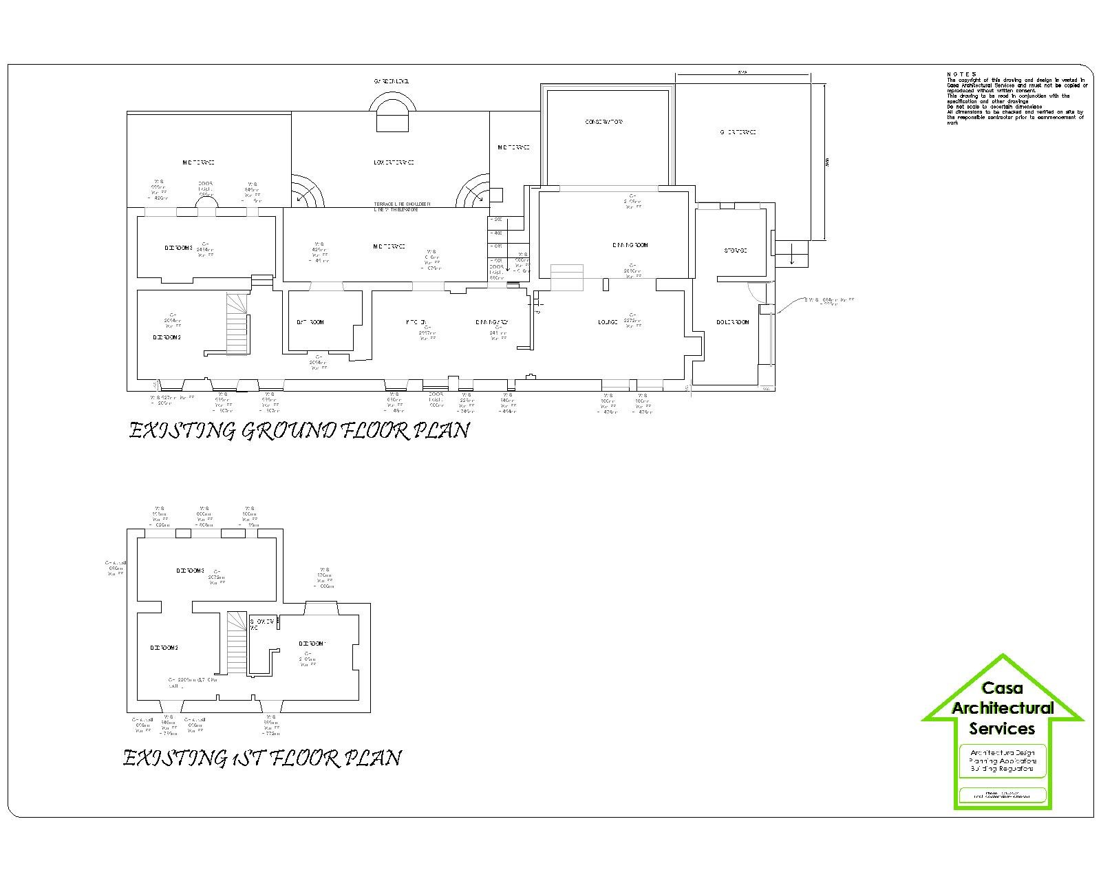
Sea View house is a detached stone built home, nestled in Walton bay. The house has been extended several times but currently does not make the most of the magnificent views across the Bristol Channel.
The proposal is a response to the clients need and desire to enjoy and connect with the panoramic views over the Bristol Channel into Wales. I have left most of the back elevation untouched emphasizing new rooms with views, making it practical for modern living.  
 
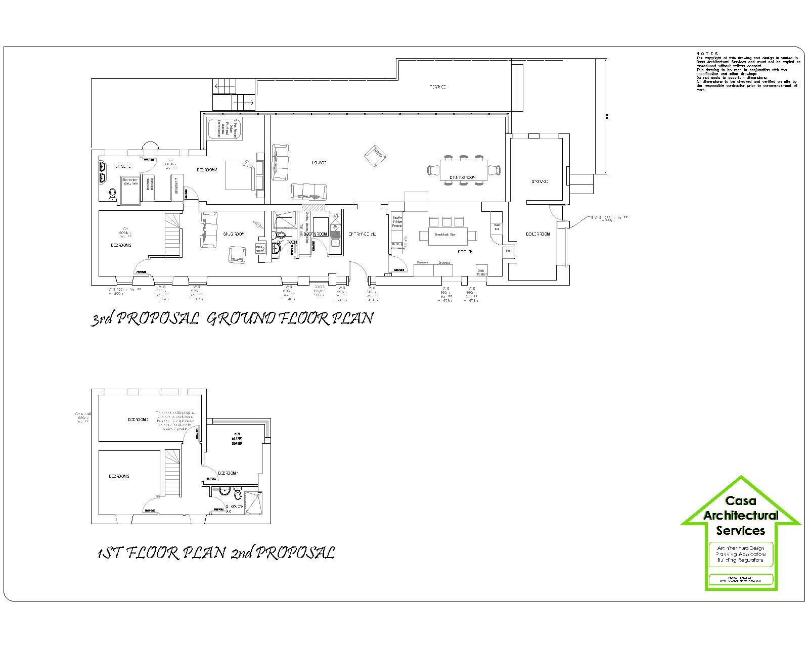
The design aspirations are to create a glazed gable end to make way for views from the kitchen area through the dining room. The living room will branch off from the dining room with a contemporary glass wall to maximize the views and leaving the external stone wall as internal, showing the traditional structures that contain rich craftmanship.

The added structures will provide large exposed spaces, with modern and warmer materials, the kitchen will benefit from the morning sun, with a smaller glazed gable end and a new bedroom distribution with en-suites to add to the modern standards.

 
Status Design
Size 261.44m²
Type Extension & Renovation
Client Private Client
 
Tuesday, 01 September 2020