Cart

Saturday, 09 October 2021

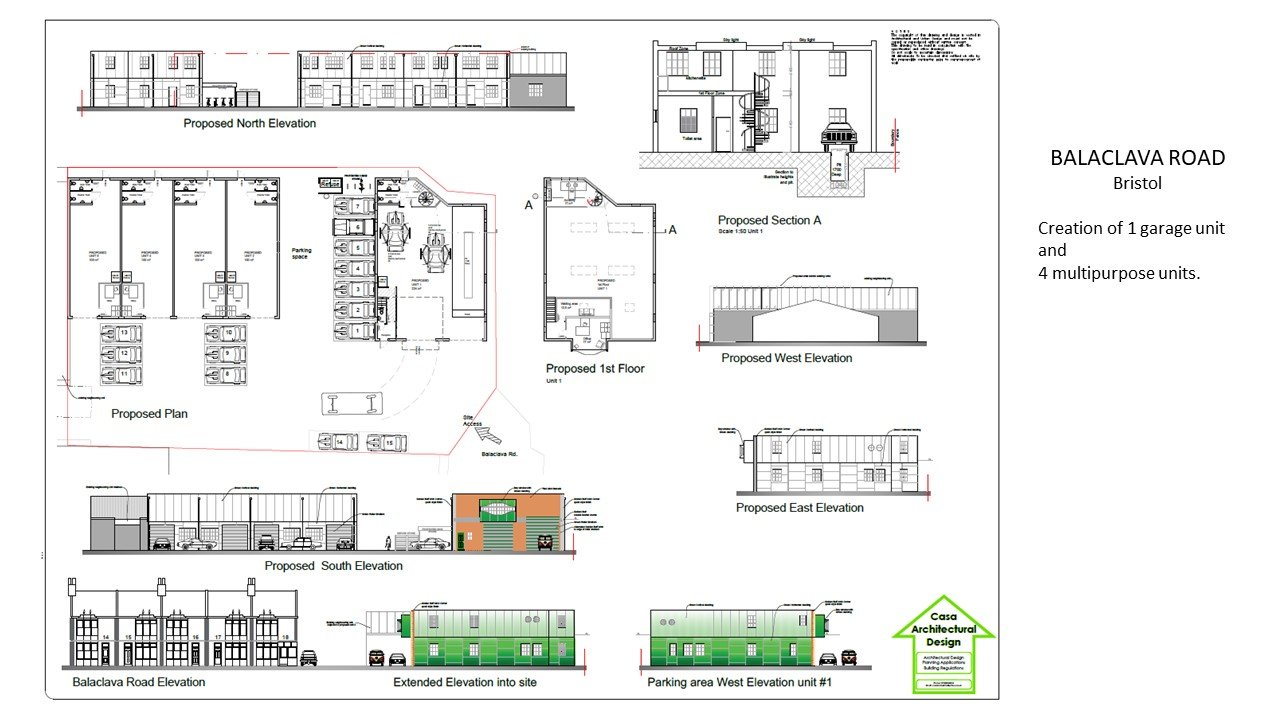
Balaclava Road

Saturday, 09 October 2021